ostatnia modyfikacja: 2026-01-20 17:04:27
INFOLINIA: +48/12 357-27-57, 18/549-20-12, +48 602 150-756
Kraków,
Wieliczka,
Skawina,
Niepołomice,
Myślenice,
pow. krakowski,
pow. wielicki,
pow. myślenicki,
Gdów,
Dobczyce,
Nowy Targ,
pow. nowotarski,
Zakopane,
pow. tatrzański
Podobne oferty
Promowane oferty

Jako pierwsi w Małopolsce Stosujemy
KARTĘ PRAW KLIENTA !!!
Sprzedaż
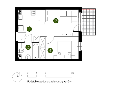
2 - pokojowe
(numer oferty: 49282)
Pachońskiego-okolice
Krakow /Prądnik Biały
36.00 m2
562 000 zł
(15 611 zł/m2 )
Uważasz, że cena jest za wysoka?
czynsz: 400.00 zł
forma prawna: Odrębna własność
rodzaj budynku: blok
standard budynku: w trakcie wykańczania
dodatki do lokalu: ogródek, winda, garaż pod budynkiem
zieleń: dużo
hałas: cicho
piętro: parter z IV
standard mieszkania: stan deweloperski
ogrzewanie: centralne miejskie
dojazd: tramwaje, autobusy
POKOJE:
liczba pokoi: 2
KUCHNIA:
informacje dodatkowe: aneks
BARDZO DOBRA INWESTYCJA NA WYNAJEM - małe mieszkania w okolicach ulicy Opolskiej i Pachońskiego, kilka minut od przystanku tramwajowego "Pachońskiego P+R".
BUDOWA W TRAKCIE - PROMOCYJNE CENY / są jeszcze dostępne małe mieszkania 2-pokojowe.
Rynek Pierwotny - bez podatku PCC, bez prowizji, tylko opłaty notarialne, wpłaty według harmonogramu, zgodnie z etapami budowy.
Bardzo dobra lokalizacja - cisza i spokój, a równocześnie blisko do centrum, tylko 6 przystanków tramwajem do Galerii Krakowskiej.
Bardzo dobra inwestycja na wynajem - dobry dojazd do AGH, UEK., Politechniki, w okolicy liczne biurowce.
Koniec budowy w 2026 roku, odbiory mieszkań w 2027.
Zapraszamy, tel. 602 150 609 / godz 10-19, również w soboty i niedziele.
Pomagamy w bezpiecznym i opłacalnym wynajmie mieszkań w tej inwestycji.
oglądano 81 razy dodane: 2026-01-08 modyfikowane: 2026-01-16
Osoba koordynująca:
Sebastian Porwisz - Pośrednik w obrocie nieruchomościami - licencja nr 16954
12/357-27-57
GSM tel.kom. 602 150-609
Pośrednik w obrocie nieruchomościami nadzorujący ofertę Konrad Koniarz - licencja 3332.
GRUPA B12 - od 1997 roku pracujemy na nasz wspólny sukces.
Jeśli są Państwo zainteresowani tą ofertą prosimy wypełnić i wysłać formularz :
Osoby oglądające powyższą ofertę oglądały także
powiadom znajomego o tej ofercie: